Descrizione
Via Bernina
Prestigioso appartamento su due livelli con terrazzo, tripla esposizione e ampi spazi abitativi
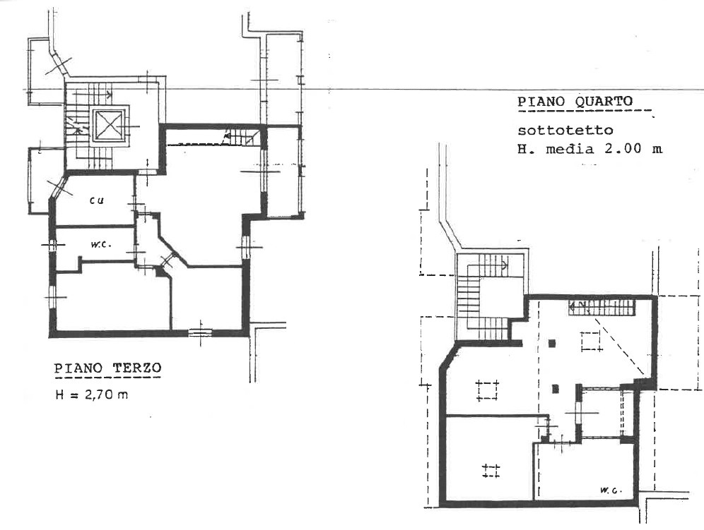
In palazzina signorile di fine anni ’90 proponiamo un’elegante soluzione su due livelli (3° e 4° piano), caratterizzata da ambienti ampi, luminosi e dalla massima versatilità.
Al terzo piano, di 103 mq, l’ingresso conduce all’ampio salone, impreziosito da una luce eccellente e dall’uscita sul terrazzo di 14 mq, ideale per vivere l’esterno con comfort. La cucina abitabile dispone di un proprio balcone; la zona notte comprende due camere e un bagno finestrato.
Una scala in muratura collega il livello superiore.
Certificazione Energetica
-
Classe Energetica: E
-
IPE Globale: 171,37 kWh/m² anno
- A4
- A3
- A2
- A1
- B
- C
- D
- 171,37 kWh/m² anno | Classe Energetica EE
- F
- G
Indirizzo
Apri su Google Maps-
Indirizzo: Via Bernina 6
-
Città: Brugherio
-
Provincia: Monza e Brianza
-
CAP: 20861
-
Quartiere: Zona San Carlo
-
Regione: Lombardia
Dettagli
Aggiornato il Dicembre 18, 2025 a 10:44 am-
ID Proprietà hz-318BERNINA
-
Prezzo €318.000
-
Superficie 160 mq
-
Camere 4
-
Bagni 2
-
Box 1
-
Dimensione del Box 16 mq
-
Anno 1997
-
Tipologia 5 Locali, Residenziale
Dettagli aggiuntivi
-
Spese condominiali € 2.000
-
Box singolo € 20.000
-
Posto Auto € 10.000
Proprietà Simili
CARUGATE – ZONA GINESTRINO
- €650/Mensili
COLOGNO MONZESE – ZONA NORD
- €800/Mensili
BRUGHERIO – ZONA SAN CARLO
- €950/Mensili
CERNUSCO S/N: in via Monza
- €1.250/Mensili
Informazioni di Contatto
Lista immobili
Il contenuto degli annunci presenti sul sito non potrà in nessun modo costituire elemento contrattuale. Le immagini, le mappe e gli allegati sono di esclusiva proprietà di Gruppo Casa Cernusco s/N srl PIVA 04550420964. La società Gruppo Casa Cernusco s/N srl precisa che potrebbero esserci errori o refusi nella battitura dei testi da parte dello Staff di ufficio.








