MILANO: Piazza Insubria
- €270.000
Descrizione
ZONA: in zona semicentrale, a pochi minuti a piedi da scuole, supermercati, parchi, centro commerciale. Ottimamente collegata con il tram 16, linee autobus, passante ferroviario di Porta Vittoria. Zona in forte sviluppo che prevede un progetto di riqualificazione con nuovi servizi quali nuovo campus dello IED e il passaggio della nuova M6 già approvato.
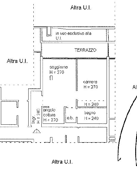
DISTRIBUZIONE INTERNA: al piano rialzato, luminoso 2 locali di 50 mq composto da ingresso, soggiorno con cucina a vista e uscita sul terrazzo, bagno con angolo lavanderia e ampia camera matrimoniale con terrazzo.
Certificazione Energetica
-
Classe Energetica: F
-
IPE Globale: 196,02
- A4
- A3
- A2
- A1
- B
- C
- D
- E
- 196,02 | Classe Energetica FF
- G
Indirizzo
Apri su Google Maps-
Indirizzo: via nicastro 1 milano
-
Città: Milano
-
Provincia: Milano
-
Quartiere: Zona Corvetto
-
Regione: Lombardia
Dettagli
Aggiornato il Aprile 15, 2026 a 3:24 pm-
ID Proprietà hz-270MILANO
-
Prezzo €270.000
-
Superficie 50 mq
-
Camera 1
-
Vani 2
-
Bagno 1
-
Anno 1970
-
Tipologia 2 Locali, Residenziale
Dettagli aggiuntivi
-
Consegna Giugno 2026
-
Spese condominiale 2400
Proprietà Simili
CARUGATE – ZONA GINESTRINO
- €650/Mensili
COLOGNO MONZESE – ZONA NORD
- €800/Mensili
BRUGHERIO – ZONA SAN CARLO
- €950/Mensili
CERNUSCO S/N: in via Monza
- €1.250/Mensili
Informazioni di Contatto
Lista immobili
Il contenuto degli annunci presenti sul sito non potrà in nessun modo costituire elemento contrattuale. Le immagini, le mappe e gli allegati sono di esclusiva proprietà di Gruppo Casa Cernusco s/N srl PIVA 04550420964. La società Gruppo Casa Cernusco s/N srl precisa che potrebbero esserci errori o refusi nella battitura dei testi da parte dello Staff di ufficio.